48
$595,000 Sale
Listed 5 hours ago
2017 ERIE Street
· 1+1
· 2.0
· 4
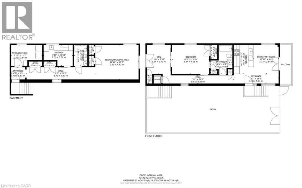
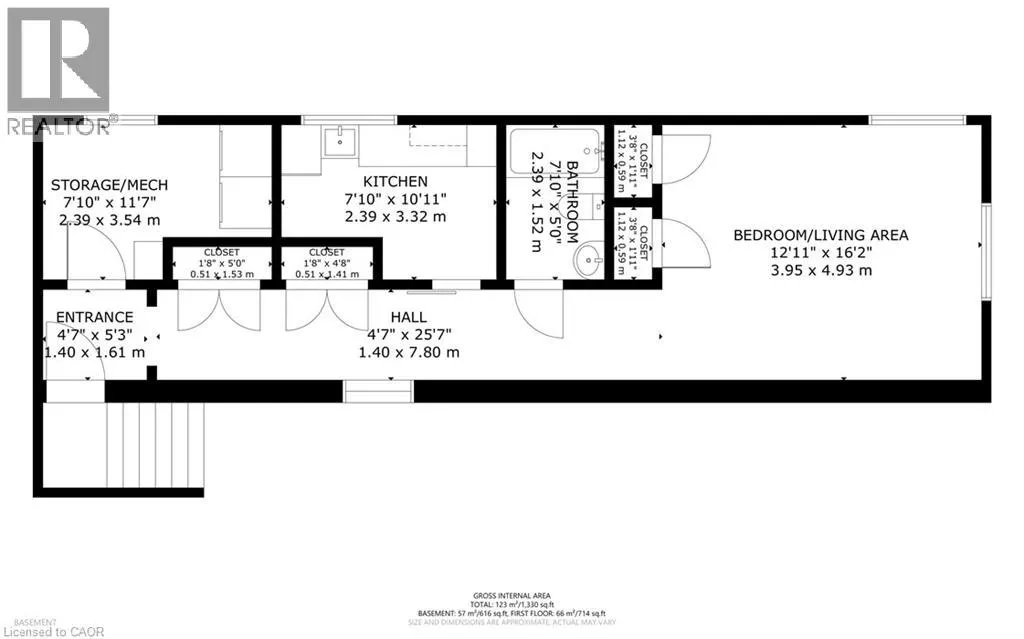
· 1330
Key Facts
Key facts for 2017 ERIE Street
Property Type
House, House
Parking
Garage: No, 4 parking
MLS #
40779529
Size
1330 sqft
Basement
Finished, Full (Finished)
Listed on
-
Lot size
-
Tax
-
Days on Market
-
Year Built
2018
Maintenance Fee
-
Description
Welcome to endless possibilities in Port Dover! Whether you're looking for a potential 2 unit income property or looking for easy living that accommodates for an in-law suite; this unique, modern home boasts a prime location just two blocks from the shores of Lake Erie. Only 3 minutes to the beach a...nd 5 minutes from the vibrant, charming downtown filled with restaurants, shops, and local gems. Inside, a tastefully designed interior maximizes every inch of space. Highlights include a generously sized rear bedroom that opens into a smaller open area, ideal as a home office, cozy den, or future walk-in closet, complete with a private balcony overlooking the yard. The kitchen and living room flow together seamlessly, creating an integrated yet intimate space that never feels cramped. Ample natural light fills the home, drawing you toward a second balcony at the front, perfect for relaxing and letting your worries melt away. We mentioned unique and this home delivers. Beyond the gorgeous red exterior and striking black metal roof, you'll find even more flexibility with the lower level, offering potential as a granny suite or income unit. With its own separate entrance, kitchen, laundry, large windows, and impressively sized studio-style living area, the possibilities are endless. Book your private viewing of this showpiece home today! (id:10452)
Similar Properties (No results)
Room Types
3pc Bathroom
-
Dimensions 5'0'' x 7'10''
39.17 sqft
3pc Bathroom
-
Dimensions 8'2'' x 11'0''
89.83 sqft
Bedroom
-
Dimensions 16'2'' x 12'11''
208.82 sqft
Listing courtesy of: ROYAL LEPAGE TRIUS REALTY BROKERAGE
This REALTOR.ca listing content is owned and licensed by REALTOR® members of The Canadian Real Estate Association.